Réalisation : Crypte de l’Abbaye de Jouarre
Présentation
| Maîtrise d'ouvrage | Ville de Jouarre (77) |
| Localisation | Voir la carte gps(48.927, 3.131) |
| Monuments historiques | Classé MH |
Interventions
| 2015 | Etude préalable |

Photos






Description
Crypte de l’abbaye Notre-Dame de Jouarre (77)
Étude architecturale et historique
Localisation : Jouarre (Seine-et-Marne)
Classement : Monument Historique (depuis 1840)
Fonction actuelle : Site patrimonial avec espace d’exposition et crypte visitable
🕰️ Historique
L’abbaye de Jouarre est un haut lieu de l’histoire monastique mérovingienne en France. Fondée entre 630 et 637 par saint Adon, elle est rapidement transformée en monastère féminin par sainte Théodechilde, probablement sa sœur. L’établissement devient une puissante abbaye bénédictine, abritant notamment les tombeaux des membres de la famille fondatrice.
Le complexe primitif comprenait trois églises indépendantes :
- Notre-Dame, l’abbatiale,
- Saint-Pierre, destinée aux moines,
- Saint-Paul, la basilique funéraire, dont seules subsistent aujourd’hui les cryptes.
Parmi les personnalités majeures associées à ce lieu figure Angilbert (ou Agilbert), frère de Théodechilde et évêque de Paris, qui se fait construire de son vivant un caveau funéraire à l’est de l’église. Celui-ci sera transformé au VIIIe siècle en un espace cultuel remarquable, enrichi d’éléments décoratifs rares et précieux.
Le site subit des réaménagements au XIIIe siècle et une restauration marquée au XIXe siècle. Malgré cela, la crypte Saint-Paul conserve plusieurs éléments de l’époque mérovingienne et carolingienne, faisant d’elle un témoin exceptionnel de l’architecture religieuse de cette période.
🧱 Description architecturale
🔹 L’ensemble bâti
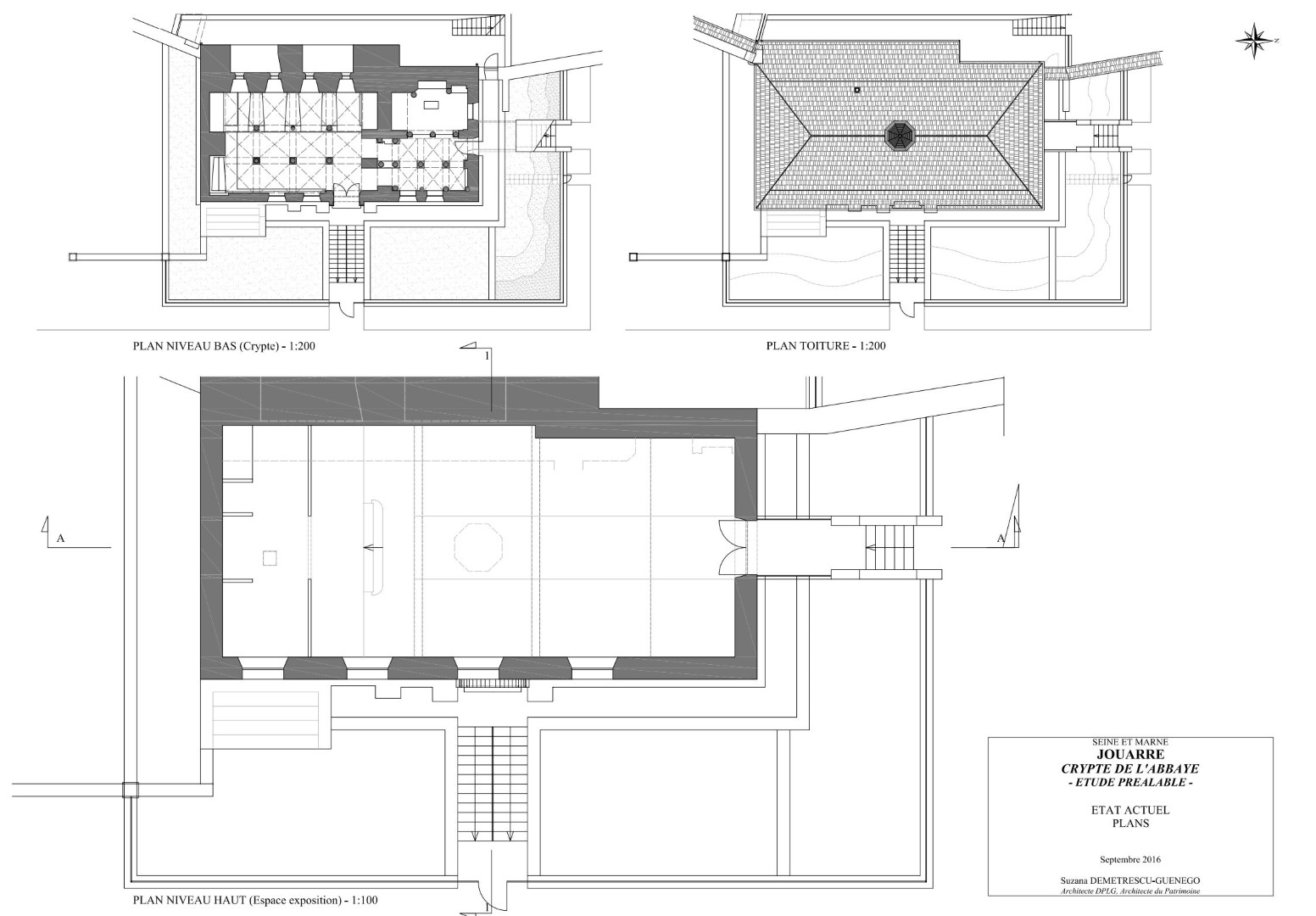
Le bâtiment actuel abritant la crypte est un volume rectangulaire d’environ 17,60 x 10 mètres, d’une hauteur totale de 11 mètres. Il est implanté au cœur du bourg de Jouarre, en contrebas de la place Saint-Paul.
L’édifice est constitué de deux niveaux :
- Le niveau bas, correspondant aux cryptes, accessible depuis la cour par un escalier maçonné,
- Le niveau haut, aménagé en salle d’exposition, accessible via une passerelle et un escalier côté sud.
🔹 Matériaux et structure
- Maçonnerie : moellons hourdés à la chaux, avec parements extérieurs enduits (notamment sur la façade Est).
- Charpente : en bois de chêne avec fermes traditionnelles, chevrons et liteaux en sapin.
- Toiture : à quatre pans couverte de tuiles plates, surmontée d’un clocheton en bois coiffé d’ardoises.
- Éléments annexes : évacuations en zinc, grilles de protection sur les baies vitrées, épis de faîtage.
🔹 Façades
- Ouest : façade principale, rythmée par des baies vitrées avec vitraux et protections grillagées.
- Sud : issue de secours en bas et porte d’entrée de l’exposition à l’étage.
- Est : niches à arcades et baies, fortement dégradées au moment du diagnostic de 2016.
🧩 La crypte : éléments mérovingiens remarquables
Les cryptes de Jouarre, et en particulier la crypte Saint-Paul, sont considérées comme un des plus anciens ensembles funéraires chrétiens conservés en France. Elles se distinguent par :
- Une salle à neuf travées séparées par six colonnes de remploi, coiffées de chapiteaux en marbre blanc des Pyrénées.
- Un mur ouest décoré en opus reticulatum, rappelant l’influence carolingienne germanique (Lorsch).
- Des accès souterrains d’origine médiévale, dont un reliant directement l’église funéraire à la crypte.
⚰️ Tombeaux
- Théodechilde : cénotaphe orné d’une inscription et de coquilles marines, datant du VIIIe siècle.
- Angilbert : tombeau daté vers 673, influencé par l’art antique et oriental.
- Balde, abbesse : tombeau du début du IXe siècle.
- Ozanne, reine d’Écosse : gisant du XIIIe siècle, œuvre postérieure mais conservée sur place.
Un relief en marbre représentant Angilbert et un ange encensant son tombeau constitue une pièce d’exception, contemporaine du tombeau mérovingien.
