Réalisation : Eglise Saint-Pierre-Saint-Paul de Donnemarie-Dontilly
Présentation
| Maîtrise d'ouvrage | Communauté de communes Bassée-Montois (77) |
| Localisation | Voir la carte gps(48.475, 3.128) |
| Monuments historiques | Classé MH |
Interventions
| 2025 | Restauration des parements extérieurs, charpente et couverture |
| Missions | Maîtrise d"oeuvre, OPC |
| Montant des travaux | 980 000 € HT |
| 2022 | Restauration des parements extérieurs et intérieurs du bas-côté nord de l’église de Dontilly |
| Missions | Maîtrise d"oeuvre, OPC |
| Montant des travaux | 504 000 € HT |
| 2020 | Etude préalable |

Photos









Description
Église Saint-Pierre-Saint-Paul de Donnemarie-Dontilly
Commune de Donnemarie-Dontilly (Seine-et-Marne)
Classée Monument Historique le 12 décembre 1930
Situation et organisation spatiale
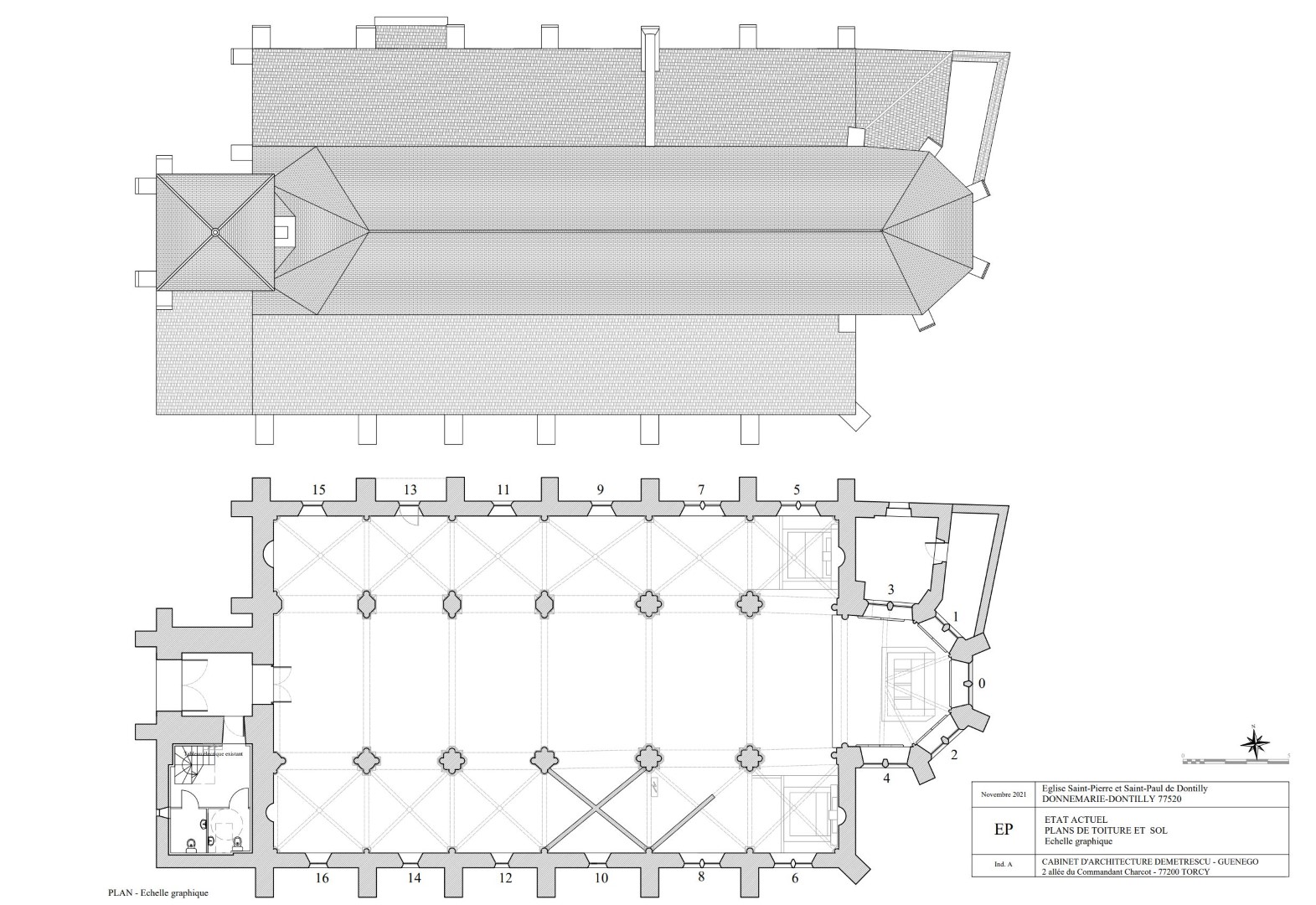
L’église est située au sud du hameau de Dontilly, au 3 rue des Écoles. Elle s’organise selon un plan orienté ouest-est, avec un clocher massif en façade occidentale. L’ensemble comprend :
- Une nef centrale non voûtée, avec charpente en bois apparente ;
- Deux bas-côtés voûtés d’ogives, au nord et au sud ;
- Un chœur polygonal en abside ;
- Deux sacristies ;
- Une annexe accolée à la façade sud du clocher.
Dimensions :
- Longueur : 38,50 m
- Largeur : 18 m
- Hauteur faîtage : 18,50 m
- Hauteur clocher : 27 m
Caractères stylistiques et structurels
Nef et charpente
La nef se distingue par l’absence de voûte maçonnée. La charpente en bois est composée de sept fermes (entrait, poinçon, arbalétriers…). Les murs latéraux présentent des oculi et des vitraux. Les piles et colonnes engagées supportent des arcatures brisées sur deux niveaux. Les chapiteaux sont ornés de feuillages sculptés (acanthe).
Chœur
Le chœur à cinq pans est rythmé par des arcatures aveugles et des colonnes. Il est orné de vitraux flamboyants en lancettes représentant Saint Jean-Baptiste, Saint Pierre et Saint Paul. Le maître-autel en terre cuite comprend des figurines, un tabernacle et deux anges.
Bas-côtés
Les deux bas-côtés présentent chacun six travées voûtées sur ogives. Chaque travée comporte des vitraux.
- Bas-côté nord : très dégradé, infiltrations, plancher effondré.
- Bas-côté sud : mieux conservé, mais présence de murs en parpaings au niveau de certaines travées.
Clocher
Le clocher occidental comprend quatre niveaux. Le beffroi en bois abrite les cloches accessibles par échelles. Le clocher est couronné d’une toiture en ardoise avec girouette en plomb. Les abat-sons sont percés d’ouvertures en arc.
Matériaux et décors
- Maçonnerie : moellons et pierre de taille, enduits à la chaux
- Charpente : bois de chêne et sapin
- Toitures : ardoise (nef et clocher), tuiles plates (sacristie et bas-côtés)
- Sols :
- Chœur : damier noir et blanc en tomettes
- Nef : béton brut
- Bas-côtés : tomettes ocre brun
- Sacristie : briques
- Décors :
- Traces de polychromie dans le chœur et la nef
- Frise de fleurs de lys au-dessus de la porte intérieure
- Sculptures florales sur les chapiteaux
- Vitraux colorés et oculi
État de conservation
- Toitures : couvertures manquantes ou dégradées, infiltration d’eau généralisée
- Charpente : visible, déformée localement, bois moisés ou affaiblis
- Enduits intérieurs : absents ou décollés, pierres exposées
- Maçonnerie extérieure : joints absents, pierres altérées, végétation envahissante
- Vitraux : nombreux manquants ou obturés avec contreplaqué, grilles vétustes
- Sol : très dégradé, mousse, tomettes disjointes
- Décors : vestiges de peintures murales, mobilier en partie disparu
